4.1 It is important that the specification does not retain detailed planning risk in the public sector. Contract documentation will normally place the full responsibility for achieving planning permission fairly and squarely on bidders. Detailed planning permission should not normally be required to be obtained before the appointment of a preferred bidder. The public sector procurer can if necessary consult with the planning authorities on the differing bids at ITN stage to identify any possible obstacles to the achievement of planning permission. If the planning authority is generally content then the assessment of a bid will put a low risk on planning consent and therefore a high assessment, in this repect, on deliverability.
4.2 The private sector will normally have wider experience in dealing with planning authorities than the public sector. The procurer should, therefore, normally seek to transfer this risk. For many PFI accomodation projects, each bidder is likely, and indeed should be encouraged, to offer different solutions, often based on different sites. In this instance it makes clear sense for the bidder to obtain both outline and detailed planning permission.
4.3 For accomodation projects on a specific site, the procurer should at least speak to the local planning authorities and discuss their intentions in order to accelerate the process. Building a close relationship with the planning authorities can help smooth the procurement process. Where there are clear planning constraints on an existing location or on a specific site regarding the proposed use of that site, or there may be problems because of the scale and intensity of development or use (eg major hospital) or the type of facility (eg prison), these factors could lead to considerable delays. In these circumstances, the procurer may seek to obtain outline planning permission. In such cases the procurer will have more knowledge of the site and its restrictions. This will avoid each of the bidders duplicating a lengthy process and incurring unnecessary expense. There may be other circumstances where the procurer may need to retain responsibility, for example where the planning permission to be granted may be the subject of a judicial review.
4.4 Where the public sector seeks outline planning approval for sites for projects such as a hospital, school or prison, the procurer should avoid going into levels of detail that constrain the bidder's ability to provide an innovative and cost-effective design.
For example:
• the overall boundary of the area to be built upon should be indicated instead of providing illustrative footprints of buildings;
• maximum building heights should be indicated within the area to be built upon, which may vary if this area is further sub-divided into illustrative zones; and
• no commitments should be given about surface finishes or the massing of buildings.
Example: In a PFI prison project, planning clearance and permission were granted to the Prison Service in outline following Public Enquiry and, thereafter, the proposals were subject to procurement through the PFI process. The objective was to achieve a planning decision that was flexible and could accomodate any future designs by PFI bidders. The planning aplications were made in outline, requiring a minimum amount of information to be submitted to the planning authority, and sufficient to identify the site and the proposal. Indicative drawings of potential prison design were also submitted, but these were always on the understanding that the eventual contract winner would be progressing their own detailed scheme within the parameters of outline applications. The matter went to local Public Enquiry and, in support of the applications, further illustrative material was provided but, again, this related to an indicative scheme. The Secretary of State granted planning clearance and permission for the proposal and was happy to consider it in outline. |
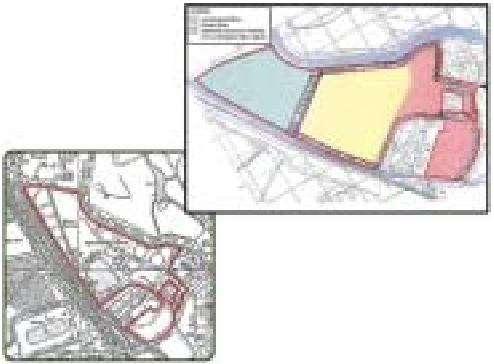
Zonal plans used by the Prison Service at a Public Enquiry to establish parameters within which bid proposals were to be prepared.

4.5 If, however, there is immediate impact on adjoining land through landscaping and boundary construction, a specific solution for these matters may be appropriate, provided it is made clear that a successful bidder may seek to improve on any such solutions in negotiation with the local planning authority at the detailed approval stage. The nature of the solutions proposed by the bidders will be relevant to the evaluation of deliverability in terms of the likely timetable and outcome when seeking detailed approval.

Site development: an example of a development control plan for an NHS Trust PFI project
4.6 Explicit technical specifications may be required to define the limits of compatibility or to describe a feature that has to be prescribed. For example, the signage to be provided by the public sector on a DBFO road must be compatible with the Highways Agency's own systems; otherwise the benefit of a national network would be lost. But only rarely should it be necessary to specify that the same system or procedures be used and, where such specifications are to be made, the requirements of the public procurement rules on technical specifications must be complied with.
4.7 The procurer should not normally take detailed planning risk as this may result in bidders offering apparently low cost schemes which, once they have been granted planning permission, may prove to require expensive alterations and extend the procurement negotiations. The private sector should be incentivised to design a scheme which will achieve planning permission and the obvious incentive is to transfer as much of the planning risk as is appropriate. The procurer must ensure that its technical specifications do not establish a single design solution, as this would result in planning risk remaining with the public sector.
4.8 The key to a successful planning application is to ensure that the provisions of any outline consent are sufficiently flexible to allow variations in alternative bids from contractors but also to ensure that any application is sufficiently detailed for a planning decision to be made on it.