Introduction
>
LGU GOVERNMENT ADMINISTRATIVE CENTER
>
Government Administrative Center Perspective and Floor Plans
>
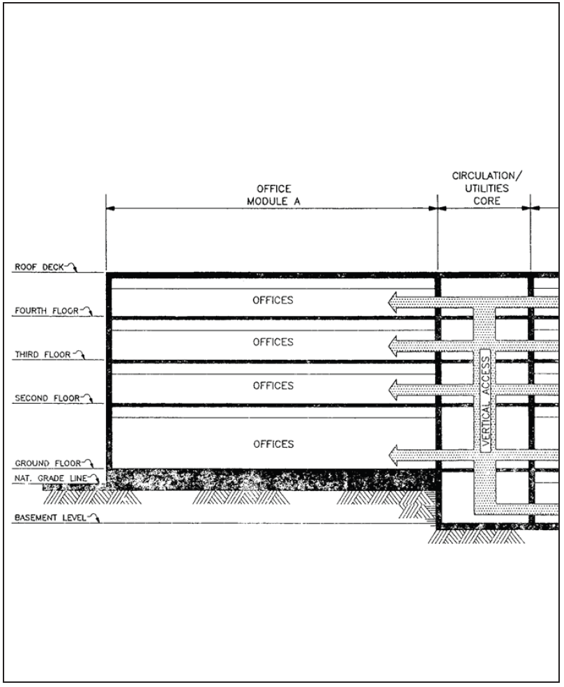
Figure 3-9: Government Administrative Center Conceptual Section, Pedestrian Circulation
Figure 3-9: Government Administrative Center Conceptual Section, Pedestrian Circulation