5.13 RESULTS OF THE SURVEYS OF CAVITY WALLS

5.13.1 In the period following the Report on the 8th April 2016 of the missing head restraints, a series of comprehensive exercises was undertaken by a combination of the structural engineering firms appointed by ESP which sought to establish the position in relation to the actual detailed construction of the cavity walls. The structural engineering firms involved were Will Rudd Davidson, supported by Harley Haddow, and Goodson Associates. Harley Haddow, also structural engineers, had been appointed by WRD as their sub-contractor to assist them in the surveys of the Phase 1 schools.

5.13.2 For clarity, while Galliford Try had appointed Goodson Associates in March 2016 to act directly for them in relation to the design and inspection of the remedial works to the four Phase 2 schools, ESP subsequently also appointed them, under a completely separate appointment, to assist WRD in undertaking some of the surveys, reports and remedial design work for the Phase 1 schools.

5.13.3 As previously stated in the Report, despite certain of the Phase 1 schools having been built by Miller Construction as construction sub-contractor (see the table at paragraph 4.5.1), Galliford Try did not become involved in any aspect of their remediation due to the contractual 12-year liability period under the original contract with AMJV having expired prior to the date of collapse of the wall and the discovery of the defective construction on the Phase 1 schools.

5.13.4 On the Phase 1 schools Amey were asked to provide or arrange for the provision of the necessary building work support to open sections of the external walls so that the consultant engineers could undertake the level of intrusive investigations required.

5.13.5 Extensive structural surveys, resulting in comprehensive survey reports, were ultimately undertaken for all the Phase 1 schools. As much information as possible had already been extracted from the very limited construction drawings that had been located from various archives. The walls of the schools were then checked to establish to what degree they had been built in accordance with these drawings.

5.13.6 Based on the analysis of these findings, calculations were undertaken, firstly to establish whether the original design solutions would have provided the required strength of panel, and secondly to establish if what had been found to be built or could reasonably be assumed to have been built would meet the structural requirements for the panels.

5.13.7 The structural engineers were then required, in the case of any panels that were found to be inadequate, to produce remedial design proposals based on fresh calculations from first principles.

5.13.8 The results of these surveys and subsequent calculations identified, in addition to the lack of embedment of wall ties and the absence or inadequate spacing of head restraints, a wider range of inadequate implementation of the structural design in relation to the lack of inclusion of necessary or specified bed joint reinforcement or secondary steelwork in the cavity walls.

5.13.9 It was found that in many of the schools the bed joint reinforcement that had been calculated as necessary and specified was either totally missing or not installed at the required spacing.

5.13.10 In certain areas, it was found that panels of brickwork, even if head restraints had been fitted, would still have required the installation of windposts to provide the required resistance to wind-loading. In other areas, it was found that necessary lateral and corner restraints to the masonry panels were not present.

5.13.11 Below are some examples from the surveys of some of the Phase 1 schools.

Image 13: Marked up survey drawing of the gym at Howdenhall Centre.

The note to the top on the left-hand side of this drawing says: 'WALL HEAD INSPECTED, NO TIES FOUND'.

Image 14: Survey photographs demonstrating failure to find head restraints at Goodtrees Neighbourhood Centre.

Images 15 and 16: Examples at Craigour School where remedial head restraints have been fitted to connect the inner leaf of the cavity wall to the steel beam.

5.13.12 Whilst varying in degree from school to school, the results of the surveys showed consistent failures across the schools in relation to the quality of construction of the walls or omissions of specified reinforcement or secondary steelwork in the construction of the walls.

5.13.13 In evidence, a Director of WRD, who had acted as structural engineering advisors for ESP stated;

"Bed joint reinforcement was specified in these constructions but again it was inconsistently applied. We instructed Amey to drill and find the reinforcement. Sometimes they did but quite often they did not. The same was true of windposts. They were found in some locations but not in others. On some occasions, they were found but not in the locations one would expect. As we came across these types of problems our confidence in the integrity of the construction began to drop further and further."

5.13.14 The approach adopted by Galliford Try in relation to the remedial works for the Phase 2 schools was significantly at variance with that adopted by ESP and Amey.

5.13.15 Although the City of Edinburgh Council had expressed an urgency to have the remedial work completed as quickly as possible, Amey had decided that they would first seek to establish as much information as possible about the structural design of the schools, what had actually been built at the different schools and what was required to rectify defective panels on a largely panel by panel basis.

5.13.16 The approach taken by Galliford Try was to seek to get the remedial works completed as soon as possible to allow the schools to be reopened. They had already determined that they would install remedial wall ties to 100% of the external walls. Having established definitively in early April the absence of head restraints, following some limited further intrusive investigations, Galliford Try decided to proceed immediately with the installation of head restraints in the Stage 2 schools in accordance with the remedial design solutions prepared by Goodson Associates.

5.13.17 As a result, the Phase 2 schools were not subjected to the same level of detailed surveys prior to commencement of construction as those undertaken in relation to the Phase 1 schools and the Inquiry did not receive the same level of detailed information as to the omission or otherwise of specified or required head restraints, bed joint reinforcement or windposts.

5.13.18 An analysis, undertaken by the Inquiry of the results of the information contained in the surveys and from subsequent records taken during the construction process, is presented in the following table. This summary table has been prepared using data contained in the investigation and remedial works reports prepared by WRD, Goodson Associates, Harley Haddow, Amey and Galliford Try.

5.13.19 The table seeks to illustrate the extent of investigations undertaken and extent of remedial works carried out. It should be noted that in some cases the extent of investigations were limited but that those limited investigations consistently recorded a sizeable percentage of non-compliance or defects from the small sample rate.

5.13.20 It can clearly be seen from the tables that across all the PPP1 schools, in both Phase 1 and Phase 2, there were significant failures on the part of those responsible for their construction. Where information was not contained in the reports made available to the Inquiry or was not made available to the Inquiry, this has been noted in the tables.

Name of
School
and
(Contractor)

Number
of
Masonry
Panels
tested

Percentage
of Cavities
checked
that were
outside
Permitted
Tolerances

Percentage of
Ties exposed
that had
Inadequate
Embedment

Percentage
of Wall
Panels that
had
Remedial
Wall Ties
installed

Percentage of
Panels
investigated for
Head Restraints
which had no
Head Restraints
found

Percentage
of Wall
Panels that
had
Remedial
Wall Head
Restraints
installed

Percentage of
Panels
investigated
that had
missing Bed
Joint
Reinforcement

PHASE 1 SCHOOLS

Broomhouse/ St. Joseph's PS (Lilley Construction)

38%

11%

33%

34%1

Information not available

13%

21%

Pirniehall/ St. David's PS (Lilley Construction)

45%

18%

50%

35%2

39%

39%

68%

Craigour Park PS (Ogilvie Construction)

30%

11%

67%

59%3

Information not available

100%

83%

Craigroyston PS (Tulloch Construct)

43%

4%

25%

65%

46 panels were investigated; survey results insufficient to derive percentage

100%

None shown on warrant drawings

Castleview PS (Miller Construction)

31%

64%

50%

100%

Information not available

100%

67%

Forthview PS (Miller Construction)

57%

25%

25%

57%

6 panels were investigated; survey results insufficient to derive percentage

96%

29%

Goodtrees NC (Miller Construction)

35%

0%

67%

25%4

7 panels were investigated Survey results insufficient to derive percentage

4%

100%

Howdenhall Centre (Miller Construction)

22%

5%

40%

78%

59% Plans for main building show 100% missing at attic level in gym hall. Elsewhere Head Restraints inconsistent.

34% 5

Information not available

Rowanfield SS (Miller Construction)

42%

25%

67%

42%6

50%

74%

50%

Craigmount HS (Miller Construction)

40%

14%

60%

45%7

16%

8%8

100%

Drummond HS (Dickie Construction) (Completed By Miller)

32%

11%

63%

86%

100%

63%9

57%

Gracemount High School (Miller Construction)

34%

40%

75%

68%

Information not available

19%

100%

The Royal HS (Robertson Construction) (Completed By Miller)

22%

14%

33%

40%

67%

59%10

Information not available


Name of
School
and
(Contractor)

Number
of
Masonry
Panels
tested

Percentage
of Cavities
checked
that were
outside
Permitted
Tolerances

Percentage of
Ties exposed
that had
Inadequate
Embedment

Percentage
of Wall
Panels that
had
Remedial
Wall Ties
installed

Percentage of
Panels
investigated for
Head Restraints
which had no
Head Restraints
found

Percentage
of Wall
Panels that
had
Remedial
Wall Head
Restraints
installed

Percentage of
Panels
investigated
that had
missing Bed
Joint
Reinforcement

PHASE 2 SCHOOLS

Oxgangs PS (Miller Construction)

13%

92%

92%

100%

Information not available

55%

Information not available

Braidburn School (Miller Construction)

35%

50%

0% 4 locations were opened. All ties were found to have adequate embedment

100%

Information not available

10%

Information not available

St Peters (Miller Construction)

13%

100%

29%

100%

Information not available

50%

Information not available

Firrhill HS (Miller Construction)

11%

23%

75%

100%

Information not available

75%

Information not available

5.13.21 The very significant extent of defective work and omission of components across the PPP schools is very evident from the above table as is the consistency of the presence of defects across the 17 projects.

• The percentage of checks on the width of cavities that were outside permitted tolerances ranged from 0% in Goodtrees Neighbourhood Centre up to 100 % in St. Peter's Primary School, averaging 29% across all 17 projects.

• The percentage of wall ties exposed that had inadequate embedment (less than 50mm) ranged from 0% to 92%, averaging 47% across the 17 projects.

• The percentage of panels that required to have remedial wall ties installed varied from 34% to 100% across all 17 projects.

• The percentage of all the wall panels in all the schools that had remedial wall head restraints installed ranged from 8% to 100% with an average of 52% across the 17 schools.

• The percentage of wall panels inspected that were found to have specified bed joint reinforcement missing ranged from 21% to 100%, averaging 67%.

5.13.22 It should be noted that the full detail as to the level of missing head restraints and bed joint reinforcement was not available to the Inquiry, particularly in relation to the Phase 2 schools repaired by Galliford Try.

5.13.23 The nature of the remedial work undertaken was fourfold:

• The retrofitting of wall ties to all panels, where it was determined that embedment was inadequate, by drilling through the outer leaf of the cavity wall into the required depth in the inner leaf and installing proprietary wall ties designed for this purpose.

• The installation of bolted folded steel plate head restraints connecting the steel beams of the structural frame to the blockwork inner leaf at specified centres on those panels where they were found to be necessary and the occasional incorporation of lateral and corner ties where they were also found to be missing.

• The installation of stainless steel windposts on those panels where required bed joint reinforcement had been omitted (as this cannot be retrofitted) or where the design requirements demonstrated that windposts were necessary to reduce the span of larger panels. These were, other than in the case of one school where they were fitted externally, fitted to the inside face of the cavity wall spanning vertically between steel beams and floor slabs or spanning horizontally between steel columns. They serve to tie the blockwork inner leaf to the structural frame.

• As the area of the collapsed panels in the gable wall at Oxgangs School had to be completely rebuilt, it was possible in that one location to install the required bed joint reinforcement as the wall was built.

5.13.24 The size of the problem of inadequate construction is demonstrated when one considers that approximately 440 heavy steel wind posts were required to be retro-installed across the 17 PPP1 schools to provide the required structural integrity to the wall panels.

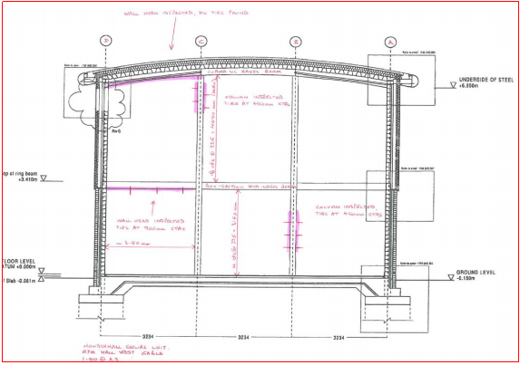
5.13.25 The drawing below (Image 17) is a typical drawing of those produced to instruct the contractors undertaking the remedial works as to the remedial installations required on the various elevations of the schools in addition of course to the retrofitting of the wall ties.

5.13.26 The elevation shown is of the West facing gable of Braidburn School.

5.13.27 The dotted red lines on the drawing indicates where wall head restraints were required to be fitted, in this case along both sloping gable end steel beams and over one window.

5.13.28 The lighter blue upright lines on the elevation indicate the locations for additional windposts. The photograph below the drawing (Image 18) shows a typical example of retro-installed windposts and wall head restraints (to both intermediate and roof level beams) in Oxgangs School.

Image 17: A typical drawing of those produced to instruct the contractors undertaking the remedial works as to the remedial installations required on the various elevations of the schools in addition of course to the retrofitting of the wall ties.

Image 18: Vertical windpost spanning from intermediate horizontal beam to roof beam and wall head restraints fitted to both beams as installed prior to boxing in and painting at Oxgangs School.




_____________________________________________________________

1 Remedial wall ties installed to gable wall panels and critical corner panels. Wind posts and head restraints added.

2 Remedial wall ties installed to gable wall panels and critical corner panels. Wind posts and head restraints added.

3 Remedial wall ties installed to gable wall panels and critical corner panels; some panels on the main elevations also treated. Additional wind posts and head restraints added.

4 Remedial wall ties installed to gable wall panels and critical corner panels and some other wall panels. Additional wind posts and head restraints added.

5 Where no Head Restraints were found, WRD undertook panel assessments for each panel to determine where new head restraints should be added. WRD note "The wall panel designs are based on the edge support conditions and panel geometry required to yield a design 'PASS'. Where this required the provision of edge restraint that was found not to be present by the exploratory investigations, the requirement for additional edge restraint ties is shown on the remedial works drawings."

6 Remedial wall ties installed to gable wall panels and critical corner panels. Wind posts and head restraints added.

7 Remedial wall ties installed to gable wall panels and critical corner panels. Wind posts and head restraints added.

8 A detailed panel assessment was undertaken by Goodson Associates for each masonry panel where head restraints were found to be missing. The design capacity to the panels was reinstated by the installation of new head restraints or the addition of wind posts to sub-divide the panel, or both.

9 A detailed panel assessment was undertaken by Goodson Associates for each masonry panel where head restraints were found to be missing. The design capacity to the panels was reinstated by the installation of new head restraints or the addition of wind posts to sub-divide the panel, or both.

10 A detailed panel assessment was undertaken by Goodson Associates for each masonry panel where head restraints were found to be missing. The design capacity to the panels was reinstated by the installation of new head restraints or the addition of wind posts to sub-divide the panel, or both.